


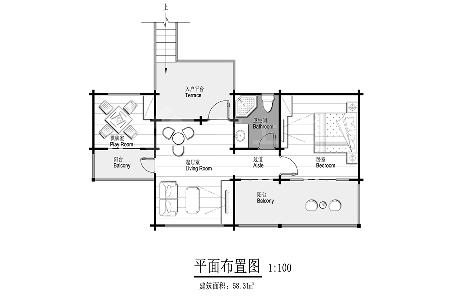
设计理念:
这个60平方米的井干式木屋酒店以创造一个与环境协调的舒适居所为愿景。
旨在将使用者带入一个“新维度”的场所,与生机勃勃的自然环境进行对话,让住户洗涤心灵,投入一个全新的心境。
建筑整体空间通透设计,使室内日照最大化的同时也使景观视线更广,增加入住体验和舒适性。
内部的每一处都经过精心设计,以保证对自然的尊重。摆脱尘世的烦恼,入住该木屋酒店,凝望夜空,倾听着森林的声音,享受坐在阳台里的宁静。
设计将这些小的、独立的单位安置在林间,它们是景观中的一个重要节点,与自然共同形成一个持续的有机环境。